Drøbak, Frogn

Segelcketråkket 5, Ytre Hallangspollen

Prosjekttype

Hytte, hovedombygging

STATUS

Rammesøknad

År

2026

Lokasjon

Drøbak, Frogn

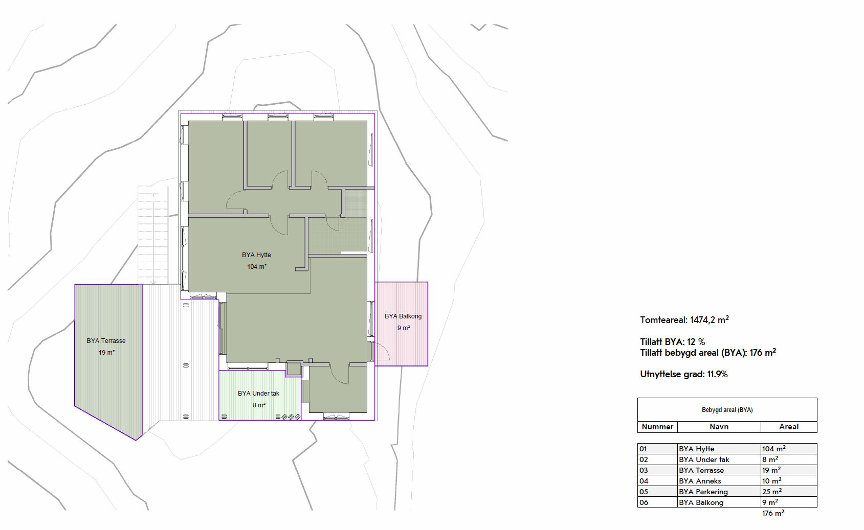
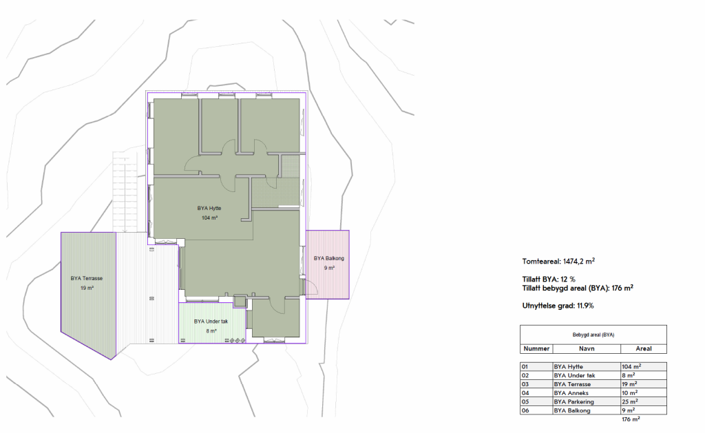
Areal

90m2

På Segelcketråkket 5 i Ytre Hallangspollen vekkes en eldre hytte til nytt liv gjennom en arkitektonisk transformasjon som søker harmoni mellom menneske og natur. Prosjektet balanserer respektfullt på toppen av det kystnære terrenget, der den moderniserte formen følger landskapets linjer med et fotavtrykk som akkurat berører de regulatoriske rammene.

Eksteriøret kles i ærlige naturmaterialer som Kebony eller Accoya, som over tid vil gråne og smelte sammen med svaberget, mens et levende sedumtak kroner bygget og visker ut skillet mellom arkitektur og vegetasjon. Lyset er prosjektets viktigste byggestein; gjennom store, strategiske glassflater inviteres himmelen og solens vandring helt inn i stuens hjerte. Innvendig møtes man av den lune teksturen fra ubehandlet ask og bjørk, som skaper en rolig atmosfære i de tre soverommene og det åpne oppholdsrommet. Her flyter livet uanstrengt mellom de lune interiørene og de luftige uteplassene, fra morgenkaffe på østbalkongen til kveldsro under pergolaen. Dette er mer enn en rehabilitering; det er en foredling av fritidslivet, der teknisk presisjon og estetisk poesi forenes i ett og samme grep.

Se våre prosjekter her.

Prosjekttype

Status

År

Lokasjon

Areal

Hytte, hovedombygging

Rammesøknad

2026

Drøbak, Frogn

90m2